Bạn đang xem tin đăng "Cho thuê nhà xưởng CCN Tiến Hưng, Đồng Xoài, Bình Phước 18.936m²", có mã số #32810, được đăng . Thông tin rao vặt là do người đăng tin đăng tải toàn bộ thông tin. Chúng tôi hoàn toàn không chịu trách nhiệm về bất cứ thông tin nào liên quan đến các thông tin này. Hãy thông báo cho chúng tôi nếu tin này không hợp lệ.
Phản ánh / Báo xấu
Cho thuê nhà xưởng CCN Tiến Hưng, Đồng Xoài, Bình Phước 18.936m²
Xã Tiến Hưng, Thị xã Đồng Xoài, Bình Phước
Tin này đã hết hạn nhưng có thể vẫn còn giá trị giao dịch hoặc tham khảo.
Hãy sử dụng công cụ tìm kiếm để tìm những tin đăng mới nhất.
Thông tin mô tả
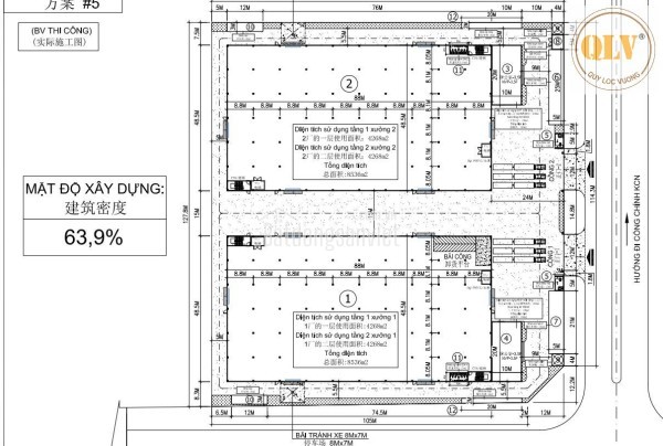
Cho thuê nhà xưởng – CCN Tiến Hưng, Đồng Xoài, Bình Phước – 18.936m²
Thông tin chi tiết
Vị trí: Cụm Công Nghiệp Tiến Hưng, TP. Đồng Xoài, Bình Phước
Tổng diện tích khuôn viên: 14.789m²
Tổng diện tích xây dựng: 18.936m²
Trong đó
Nhà xưởng 1: DTXD 9.236m² (1 trệt 1 lầu: 4.268m² + 4.268m²), văn phòng 700m² (3.5 tầng), có 2 thang máy, bình điện 400 KVA, bãi xe công và các công trình phụ trợ khác
Nhà xưởng 2: DTXD 9.236m² (1 trệt 1 lầu: 4.268m² + 4.268m²), văn phòng 700m² (3.5 tầng), có 2 thang máy, bình điện 400 KVA, bãi xe công và các công trình phụ trợ khác
Tiện ích & đặc điểm
Kết cấu nhà xưởng kiên cố, thiết kế 2 tầng, phù hợp đa ngành nghề
Đường nội bộ rộng rãi, xe container ra vào thuận tiện
Hệ thống hạ tầng điện – nước – PCCC đạt chuẩn
Nằm trong CCN Tiến Hưng, an ninh tốt, thuận lợi sản xuất
Liên hệ
CÔNG TY TNHH MTV QUÝ LỘC VƯỢNG
Hotline: 0931 769 444
Thông tin chi tiết
Vị trí: Cụm Công Nghiệp Tiến Hưng, TP. Đồng Xoài, Bình Phước
Tổng diện tích khuôn viên: 14.789m²
Tổng diện tích xây dựng: 18.936m²
Trong đó
Nhà xưởng 1: DTXD 9.236m² (1 trệt 1 lầu: 4.268m² + 4.268m²), văn phòng 700m² (3.5 tầng), có 2 thang máy, bình điện 400 KVA, bãi xe công và các công trình phụ trợ khác
Nhà xưởng 2: DTXD 9.236m² (1 trệt 1 lầu: 4.268m² + 4.268m²), văn phòng 700m² (3.5 tầng), có 2 thang máy, bình điện 400 KVA, bãi xe công và các công trình phụ trợ khác
Tiện ích & đặc điểm
Kết cấu nhà xưởng kiên cố, thiết kế 2 tầng, phù hợp đa ngành nghề
Đường nội bộ rộng rãi, xe container ra vào thuận tiện
Hệ thống hạ tầng điện – nước – PCCC đạt chuẩn
Nằm trong CCN Tiến Hưng, an ninh tốt, thuận lợi sản xuất
Liên hệ
CÔNG TY TNHH MTV QUÝ LỘC VƯỢNG
Hotline: 0931 769 444
Đặc điểm bất động sản
Danh mục: Cho thuê kho, nhà xưởng
Giá
62 nghìn /m²/tháng
Xem trên bản đồ
Tìm kiếm theo từ khóa
Cho thuê nhà xưởng CCN Tiến Hưng, Đồng Xoài, Bình Phước 18.936m²
Ngày cập nhật06-03-2026
Ngày hết hạn05-04-2026
Loại tin đăngMiễn phí
Mã tin đăng32810
Có thể bạn quan tâm:
Tính lãi suất vay
| Giá nhà đất |
VNĐ
|
| Số tiền vay |
%
|
| Thời gian vay |
năm
|
| Lãi suất |
%/năm
|
| Phương thức tính |
Trả trước
-
Tiền vay
-
Lãi cần trả
-
Tiền gốc
-
Tiền lãi
-
Bảng tính chỉ có giá trị tham khảo. Vui lòng liên hệ tư vấn trực tiếp để nhận được thông tin chính xác nhất.